














































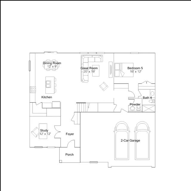
This two-story home features a study, office and additional bedroom on the first floor, giving kids ample room to play. Nearby, the Great Room, kitchen and dining room are arranged in a desirable open floorplan. The second floor has all four bedrooms and a loft for additional living space.