hero-image-0
hero-image-1
hero-image-2
hero-image-3

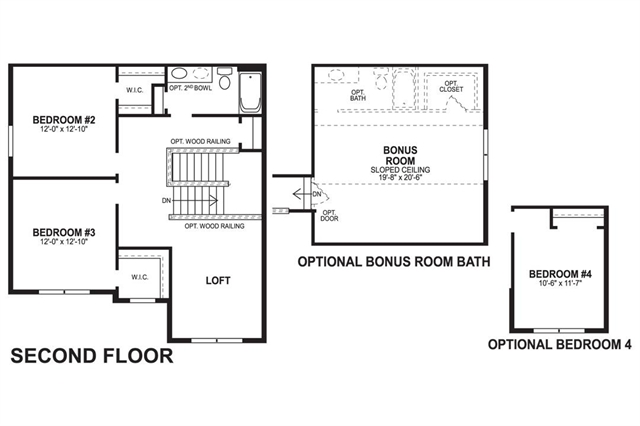
Trenton Plan

By

M/I Homes

   |   

Sanctuary At The Lakes

Sanctuary At The Lakes
Sold
Sold
3
2
1
From 2,687
Trenton Plan details
Trenton Plan is now sold.
Check out available nearby plans below.