



















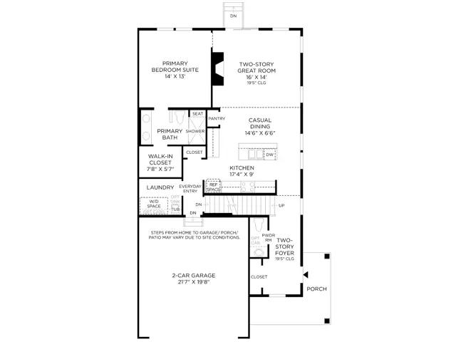
The Cloverhill's airy two-story foyer reveals an appealing view of the casual dining area and gorgeous great room with access to the rear yard. The well-appointed kitchen features a large center island with breakfast bar, plenty of counter and cabinet space, and a roomy pantry. The beautiful primary bedroom suite is complete with a sizable walk-in closet and a superb primary bath with a dual-sink vanity and a large luxe shower with seat. Central to a spacious loft, secondary bedrooms feature walk-in closets and a shared hall bath with linen storage. Additional highlights include a convenient powder room and everyday entry, centrally located laundry, and plenty of additional storage.
Stay informed with Livabl updates on new community details and available inventory.