hero-image-0
hero-image-1

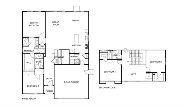
2850 Stable Drive

The Crossing
Sold
Sold
4
3
2,277
2850 Stable Drive details
unit-banner-image
unit-banner-image
unit-banner-image
2850 Stable Drive is now sold.
Check out available nearby homes below.