hero-image-0
hero-image-1
hero-image-2
hero-image-3
hero-image-4
hero-image-5

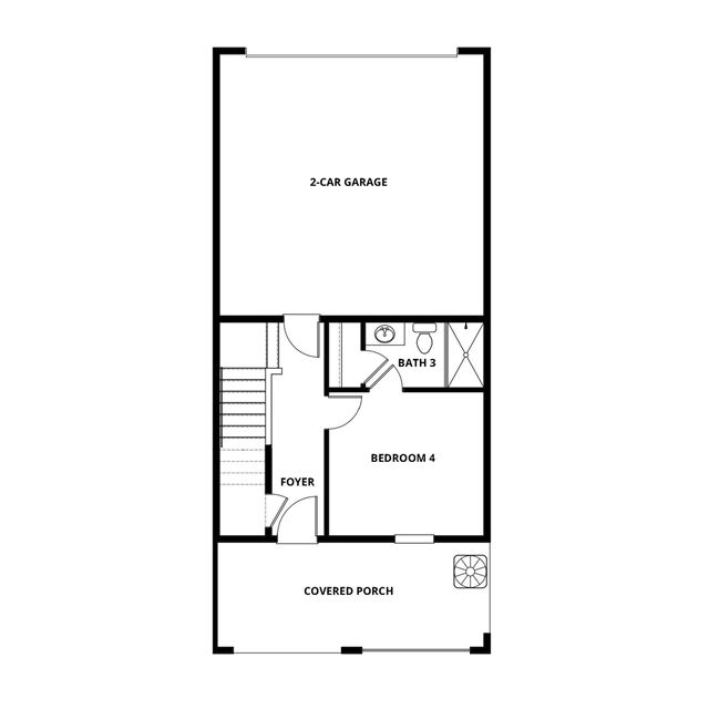
Loomis Plan

Port Towne at Bridgeway Lakes
Sold
Sold
4
3
1
From 1,901
Loomis Plan details
Loomis Plan is now sold.
Check out available nearby plans below.