hero-image-0
The Residences at Lakeview Vil...
Sold
Sold
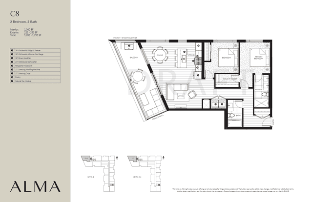
2
2
1
From 1,092
C6 Plan details
C6 Plan is now sold.
Check out available nearby plans below.