








































Images coming soon
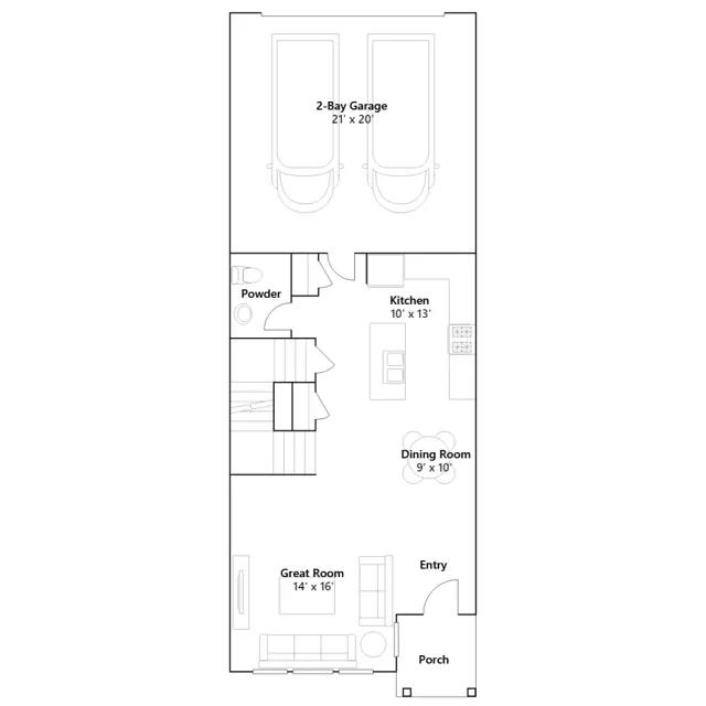
The kitchen, dining room and family room share an open floorplan on the first level of this two-story home, making transitions between spaces and multitasking simple. Upstairs, a versatile loft provides additional shared living space while three bedrooms provide comfortable and private retreats. The owners suite is among the second-level bedrooms, featuring a cozy bedroom, an en-suite bathroom and a walk-in closet.
Stay informed with Livabl updates on new community details and available inventory.