






























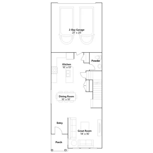
This two-story townhome showcases a spacious open floorplan on the first level, shared between the Great Room, kitchen and dining room for effortless living and entertaining. The second floor is host to all three bedrooms, including the luxe owners suite which is comprised of a restful bedroom, spa-inspired attached bathroom and walk-in closet.
Stay informed with Livabl updates on new community details and available inventory.