
Stay informed with Livabl updates on new community details and available inventory.

Developer eyes $100 million price tag for West Hollywood penthouse
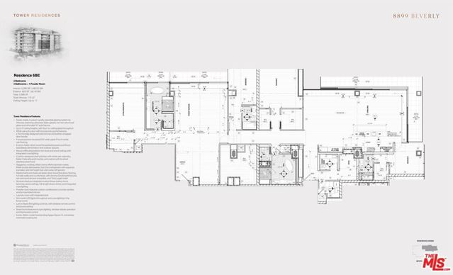
Encased in glass and steel, the penthouse boasts a private elevator, 14-foot ceilings, a 4,000-square-foot terrace clad in Italian travertine, and operable Vitrocsa window wall systems that offer sweeping, 360-degree views.

8899 Beverly inches closer to completion in West Hollywood
An adaptive reuse project that seeks to transform an iconic mid-century building into a collection of 40 luxury residences is approaching completion near the intersection of Beverly and Robertson Boulevard.

5 new construction condos and townhomes for sale in West Hollywood
In addition to being the cultural hub of the LGBTQIA+ community in Los Angeles, the City of West Hollywood is home to boutique hotels, trendy restaurants, upscale shopping and endless nightlife destinations.