





























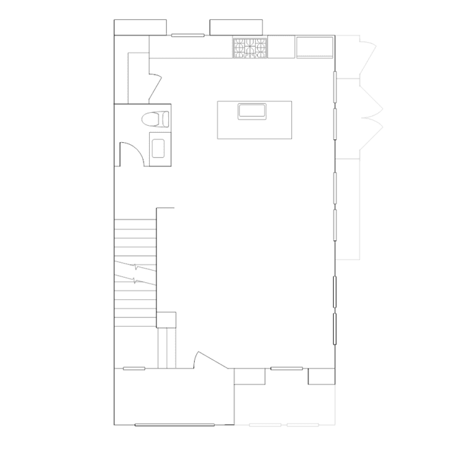
A front entry porch leads into the first level of this three-story townhome, where a versatile flex space can easily operate as a home office, exercise room, media space and more. Upstairs, an open floorplan allows for seamless flow between the kitchen, dining room and living room, while a deck is great for enjoying outdoor meals. Both bedrooms can be found on the top level, including the owners suite with a restful bedroom, en-suite bathroom and walk-in closet.