































































































Get additional information including price lists and floor plans.
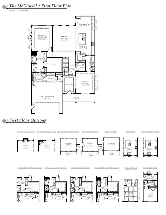
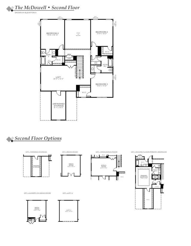
The McDowell is a two story four bedroom three and a half bath home with a first floor primary bedroom formal dining room two story family room kitchen with an island and pantry and a separate breakfast area. The second floor features three spacious bedrooms and two additional baths including a Jack and Jill bath between bedrooms two and three an oversized open loft area and an unfinished storage area.Options available to personalize this home include an alternate kitchen layout with a butler s pantry and pantry a guest suite with a full bath or an office instead of the formal dining room a sunroom a screen porch or covered rear porch an additional upstairs loft area or a media room an additional laundry area a bonus room instead of the open loft or a second primary bedroom with full bath.
Stay informed with Livabl updates on new community details and available inventory.