hero-image-0

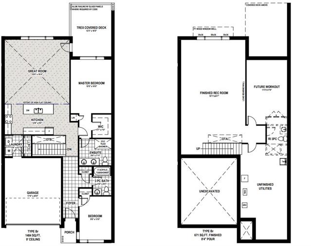
Type Br Plan

Drapers Creek
Sold
Sold
2
2
From 1,484
unit-banner-imageunit-banner-imageunit-banner-image
Type Br Plan details
Type Br Plan is now sold.
Check out available communities below.