hero-image-0

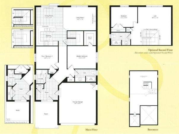
The Valencia Plan

Coyle Creek Estates
Sold
Sold
2
1
From 1,230
unit-banner-imageunit-banner-imageunit-banner-image
The Valencia Plan details
The Valencia Plan is now sold.
Check out available nearby plans below.