hero-image-0
hero-image-1

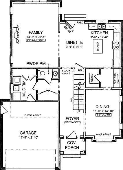
The Belmont Plan

Coyle Creek Estates
Sold
Sold
3
2
1
From 2,356
unit-banner-imageunit-banner-imageunit-banner-image
The Belmont Plan details
The Belmont Plan is now sold.
Check out available nearby plans below.