hero-image-0
hero-image-1

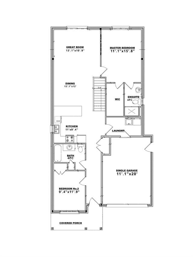
The Wheaton Plan

Canal View Estates
Sold
Sold
2
2
From 1,200
unit-banner-imageunit-banner-imageunit-banner-image
The Wheaton Plan details
The Wheaton Plan is now sold.
Check out available nearby plans below.