














Get additional information including price lists and floor plans.
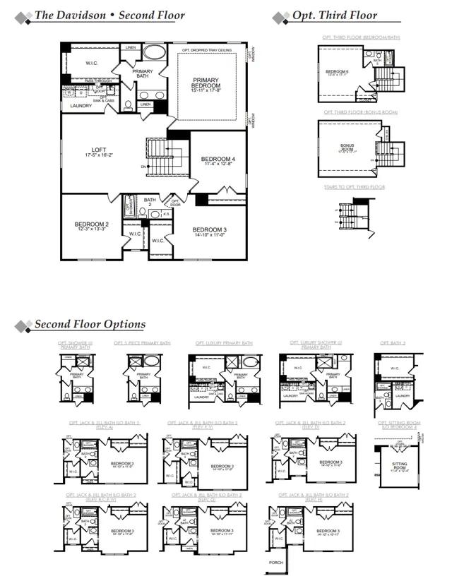
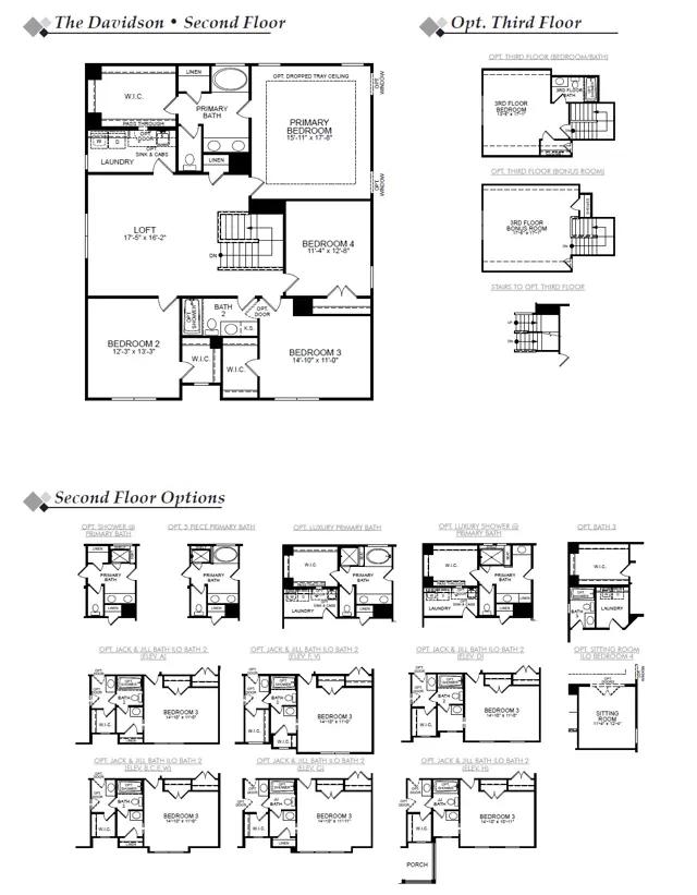
The Davidson is a two story five bedroom three bath home with a formal living room formal dining room spacious family room kitchen with island and pantry separate breakfast area and first floor guest suite with a full bath. The second floor features four bedrooms including the primary bedroom with an attached private primary bath an additional full bath a large laundry room and a loft area.Options available to personalize this home include an office with French doors instead of the formal living room a first floor powder room or additional closet a designer kitchen option an alternate kitchen layout with a separate butler s pantry sunroom screen porch or covered rear porch luxury primary bath options a Jack and Jill bath option and an optional third floor with bedroom and full bath.
Stay informed with Livabl updates on new community details and available inventory.