




































































































Get additional information including price lists and floor plans.
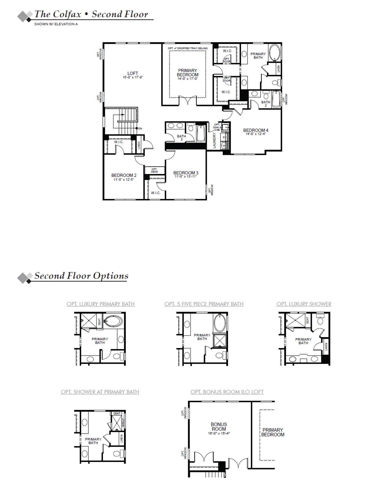
The Colfax is a spacious two story four bedroom three and a half bath home with a formal dining room office with French doors spacious family room kitchen with island a separate butler s pantry and a large storage area in the garage. The second floor features all bedrooms including the primary bedroom with two closets a loft area and a laundry room. Bedroom four features its own bath perfect for a guest suite. Options available to personalize this home include a covered rear porch screened porch sunroom first floor guest suite with full bath enclosed bonus room in lieu of upstairs loft area primary bath options plus much more.
Stay informed with Livabl updates on new community details and available inventory.