







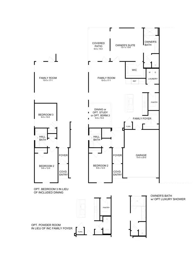
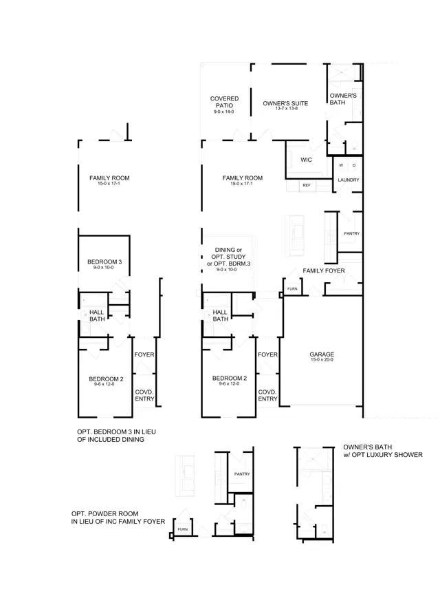
The Anfield floorplan offers a perfect combination of spaciousness and style, featuring included 10-foot ceilings that create an open and airy atmosphere. The owners suite boasts an expansive walk-in closet and a luxurious owners bath with the option for a deluxe or luxury shower. The kitchen and family room flow seamlessly together, offering a spacious and inviting area for gathering, complete with a large walk-in pantry and optional built-in appliance layout for effortless entertaining. The included covered patio provides additional living space, while the flexible design allows for an optional study or a third bedroom. The family foyer adds convenience and can be customized with an optional powder room, making the Anfield floorplan ideal for modern living.
Stay informed with Livabl updates on new community details and available inventory.