




















Get additional information including price lists and floor plans.

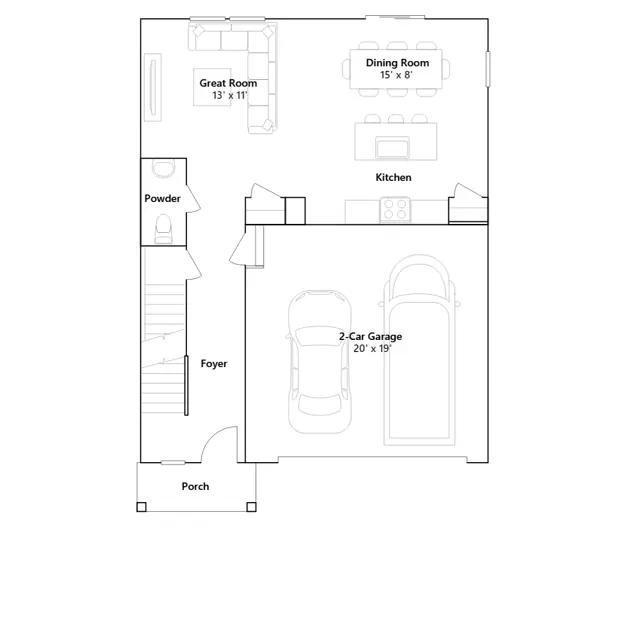
The first floor of this new two-story home is host to an inviting open-concept floorplan that blends the kitchen, living and dining areas for seamless entertaining and multitasking. All four bedrooms are located on the second floor, including the luxe owners suite at the back of the home with a spa-inspired bathroom and generous walk-in closet.
Stay informed with Livabl updates on new community details and available inventory.