hero-image-0

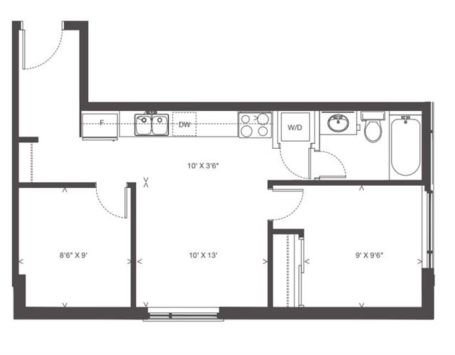
570 Plan

URL Condos
Sold
Sold
2
1
From 570
unit-banner-imageunit-banner-imageunit-banner-image
570 Plan details
570 Plan is now sold.
Check out available nearby plans below.