hero-image-0

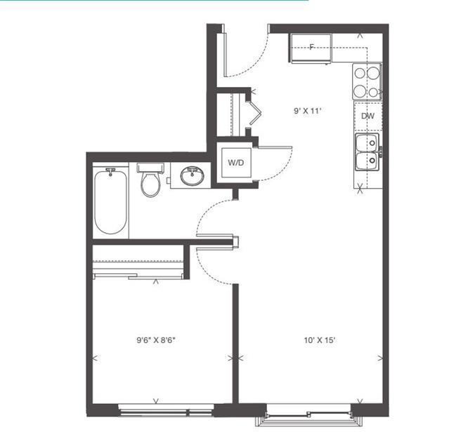
498 Plan

URL Condos
Sold
Sold
1
1
From 498
unit-banner-imageunit-banner-imageunit-banner-image
498 Plan details
498 Plan is now sold.
Check out available nearby plans below.