hero-image-0
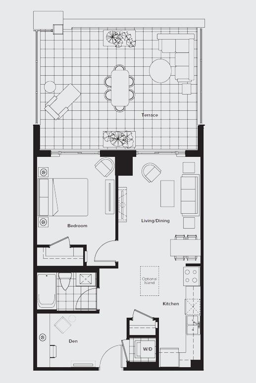
Caroline St. Private Residence...
Sold
Sold
1
1
1
From 1,026
unit-banner-imageunit-banner-imageunit-banner-image
Suite 04a Plan details
Suite 04a Plan is now sold.
Check out available nearby plans below.