





































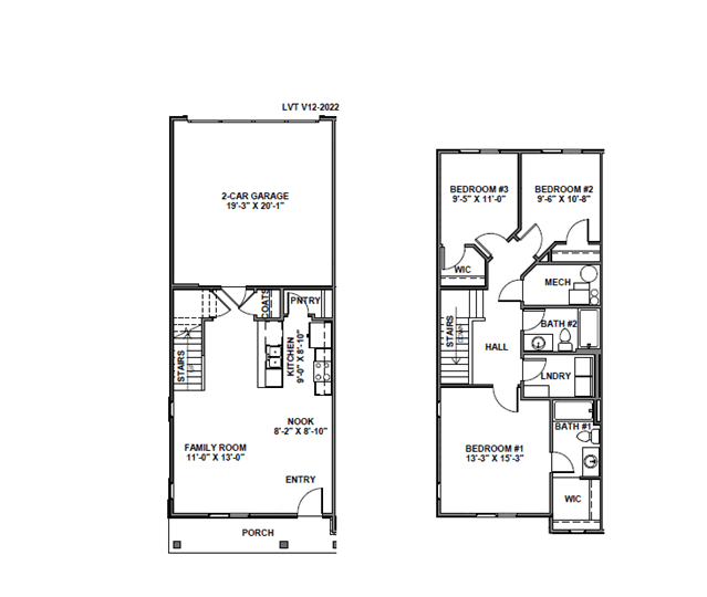
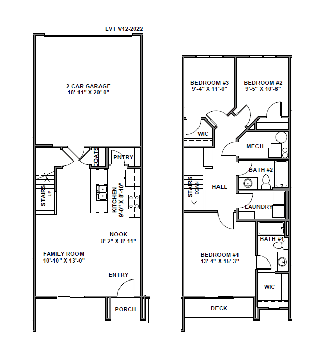
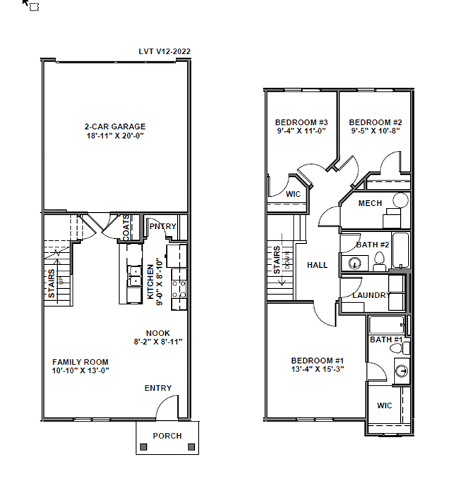
Introducing the Dalton floorplan, a two-story floorplan available in our Long Valley community in Washington City, Utah. This home offers open living space, complete with 3 bedrooms, 2 bathrooms, and a 2-car garage. The main floor features a spacious open-concept layout that combines the kitchen, living, and dining areas into a warm and inviting space. The wide hallways and stairs connecting it to the rest of the home make it feel even more welcoming and comfortable. Adorned with premium laminate flooring, this area is perfect for both everyday living and entertaining. The kitchen shines with hallmarks like shaker-style cabinets, stainless steel appliances, and a cozy pantry. Its always ready for your culinary adventures while never separating you from the action in the living or dining areas! Upstairs, the primary bedroom serves as a private retreat wit...
Stay informed with Livabl updates on new community details and available inventory.