New Homes for Sale
Articles
Professionals
Log in
Sign up
Photos 1
Videos 0
Map
Interactive floor plan 0
Virtual 0
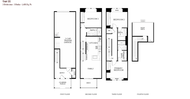
PLAN 1X
By
SummerHill Homes
|
Oak Grove
Community
Available homes
Get updates
Save
Request info
Request info
Community
Available homes
Request info
Get updates
Save
Request info
Oak Grove
Builder website
Request info
Sold
Sold
3
3
From 1,430
PLAN 1X details
Address:
Walnut Creek, CA 94597
Plan type:
Two+ Story
Beds:
3
Full baths:
3
SqFt:
From 1,430
Ownership:
Fee simple
Interior size:
From 1,430 SqFt
Lot pricing included:
Yes
PLAN 1X is now sold.
Interested? Receive updates
Stay informed with Livabl updates on new community details and available inventory.
Get updates