hero-image-0

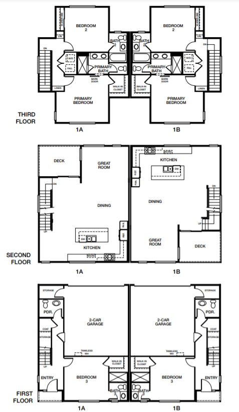
Plan 1A

Avant
Sold
Sold
3
3
1
From 1,843
unit-banner-imageunit-banner-imageunit-banner-image
Plan 1A details
Plan 1A is now sold.
Check out available communities below.