

Get additional information including price lists and floor plans.


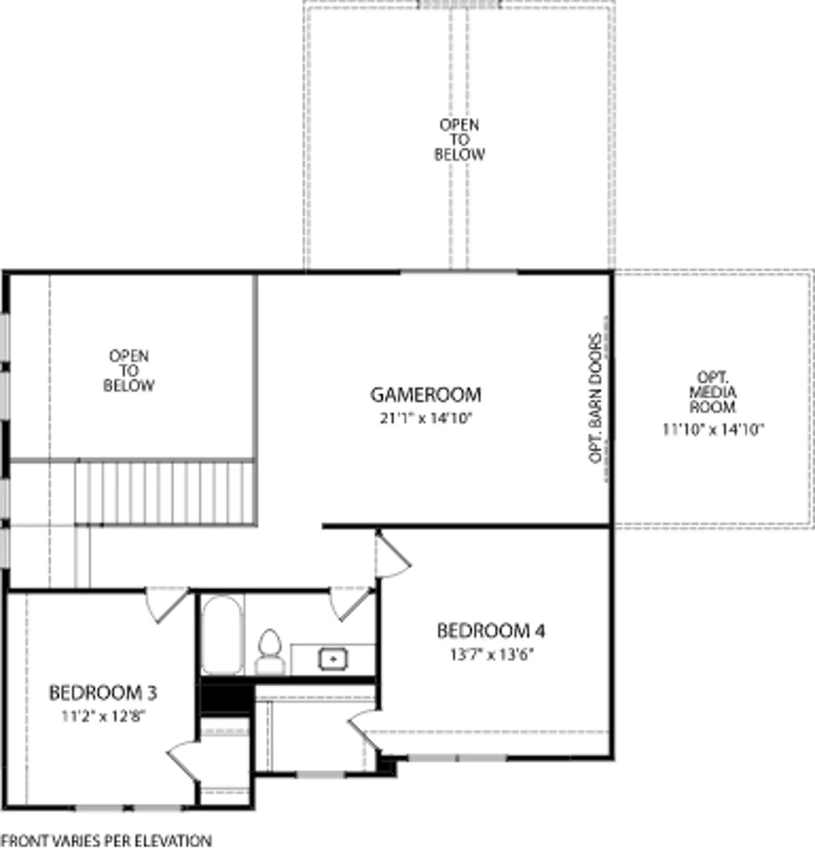
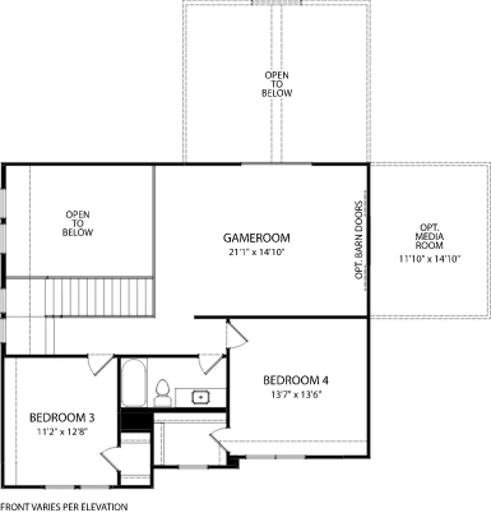
The Tegan is a beautifully crafted two-story home featuring 4 bedrooms, 3.5 baths, a spacious gameroom, and a private home office. With a layout designed for both comfort and functionality, this plan offers the perfect balance of open living and private retreats. As you enter, you have the option to add elegant double front doors for a striking first impression. A guest suite with its own private bath is conveniently located near the front, providing a welcoming space for visitors or extended family. The main living area is open and inviting, with a kitchen that seamlessly overlooks the dining area, family room, and outdoor living space. You can enhance the indoor-outdoor connection even further with the option to add a glass sliding door. Located at the back of the home, the dedicated home office creates a quiet and secluded space ideal for working from home or ...
Stay informed with Livabl updates on new community details and available inventory.