


















































Get additional information including price lists and floor plans.
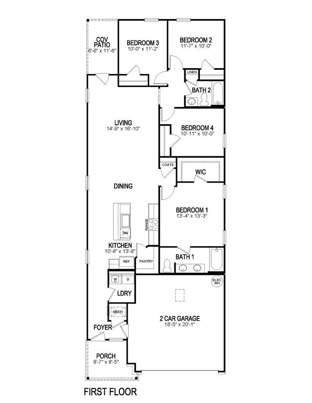
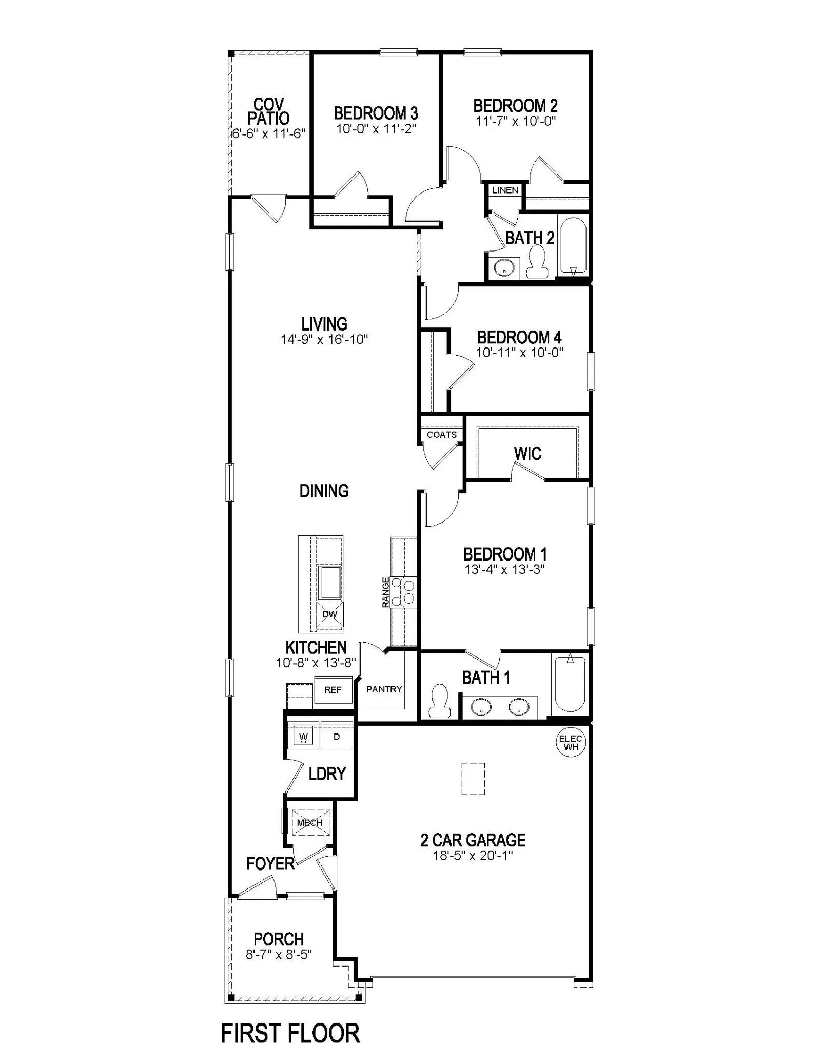
Discover the Hammond, a thoughtfully designed one-story home in the vibrant Foxglove community of Walker, Louisiana. With three distinct exterior elevations to choose from, the Hammond offers curb appeal that fits your personal style. Inside, this 4-bedroom, 2-bathroom layout spans 1,612 square feet of well-planned living space. As you enter, two secondary bedrooms and a full guest bath greet you at the front of the home, perfect for family or guests. A third bedroom is tucked off a private hallway, along with a linen closet and HVAC access for added convenience. At the heart of the home, the open-concept kitchen features shaker-style cabinetry, sleek 3 cm granite countertops, a single-basin undermount sink, and stainless steel Frigidaire appliances including a gas range, microwave hood, and dishwasher. A large corner pantry and nearby laundry room make everyda...
Stay informed with Livabl updates on new community details and available inventory.