hero-image-0
hero-image-1
hero-image-2
hero-image-3
hero-image-4

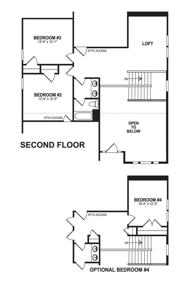
Villa Wisteria Plan

Traditions at Wake Forest
Sold
Sold
3
2
1
From 2,546
unit-banner-imageunit-banner-imageunit-banner-image
Villa Wisteria Plan details
Villa Wisteria Plan is now sold.
Check out available nearby plans below.