
















































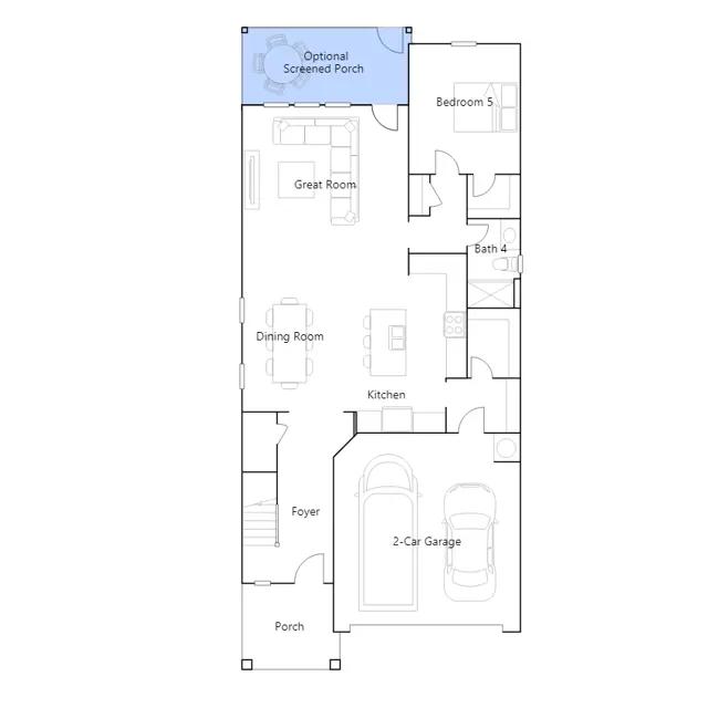
This new two-story home design combines comfort and style. An open-plan layout connects the kitchen, dining area and Great Room, which features a door providing direct access to the patio. In a private corner is the guest suite, well-suited to accommodating both overnight visitors and family members. Centrally located on the top floor is a spacious loft for additional shared living space, surrounded by three secondary bedrooms and the sprawling owners suite.
Stay informed with Livabl updates on new community details and available inventory.