





















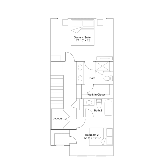
This new three-story townhome is designed for ease and comfort, with a secluded first-level bedroom ideal for hosting overnight guests. The second level has an open-plan layout that merges together the Great Room, modern kitchen and dining room with an attached deck. Both third-level bedrooms, including the luxe owners suite, showcase a private full-sized bathroom and walk-in closet for enhanced livability. Completing the home is a rear load garage for versatile storage space.