





















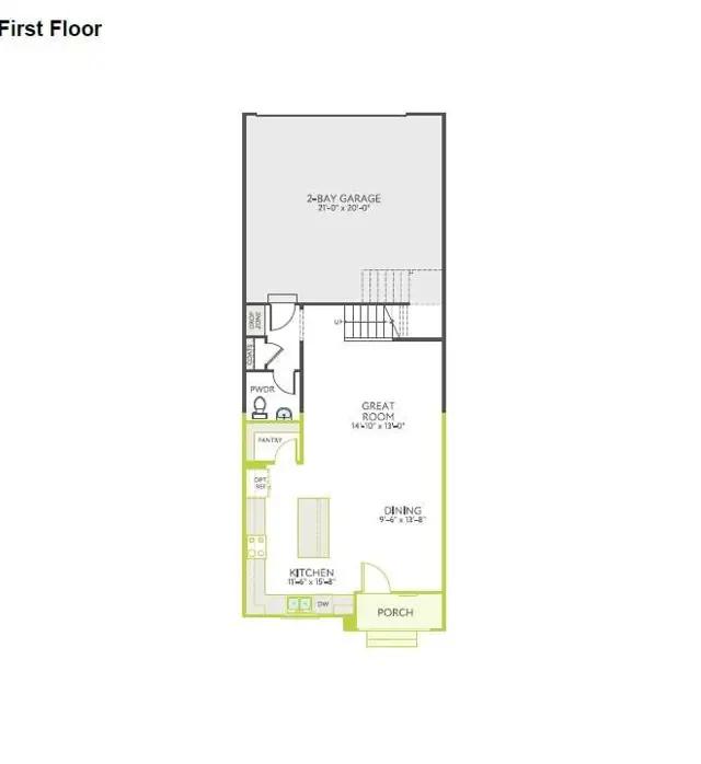
This new, two-story, townhome is surrounded by small town charm in Wake Forest, and features convenience and accessibility focused home design. The Wilson includes a 2-bay attached, rear load garage, second floor loft, a drop zone right off the garage, and a spacious living and kitchen area perfect for entertaining. The spacious kitchen is complimented by a stunning island with plenty of space for family gatherings. On the second floor you will find a spacious loft and the Primary Suite featuring a huge walk-in closet. The laundry room on the second floor adds more convenience to this functional floorplan.
Stay informed with Livabl updates on new community details and available inventory.