























































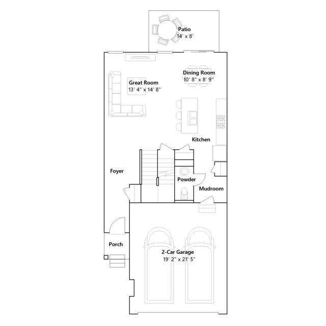
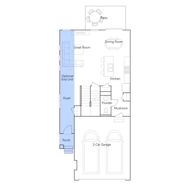
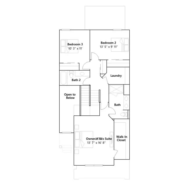
This new two-story townhome enjoys a modern design. The first floor showcases a double-height foyer, an open-plan design among the Great Room, kitchen and dining room with an attached patio. Upstairs are two secondary bedrooms and an owner's suite with a spacious walk-in closet. The Richmond features an optional finished lower level.
Stay informed with Livabl updates on new community details and available inventory.