












































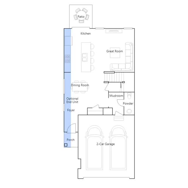
This elegant new two-story townhome grants plenty of space to grow and entertain. The first floor features an open design among a Great Room for get-togethers, a dining room for meals of every occasion and a kitchen for inspired cooking. Upstairs, two secondary bedrooms and the owners suite with a private full-sized bathroom provide personal retreats for family members. Completing the home is a two-car garage with a connected mudroom for convenience.
Stay informed with Livabl updates on new community details and available inventory.