
































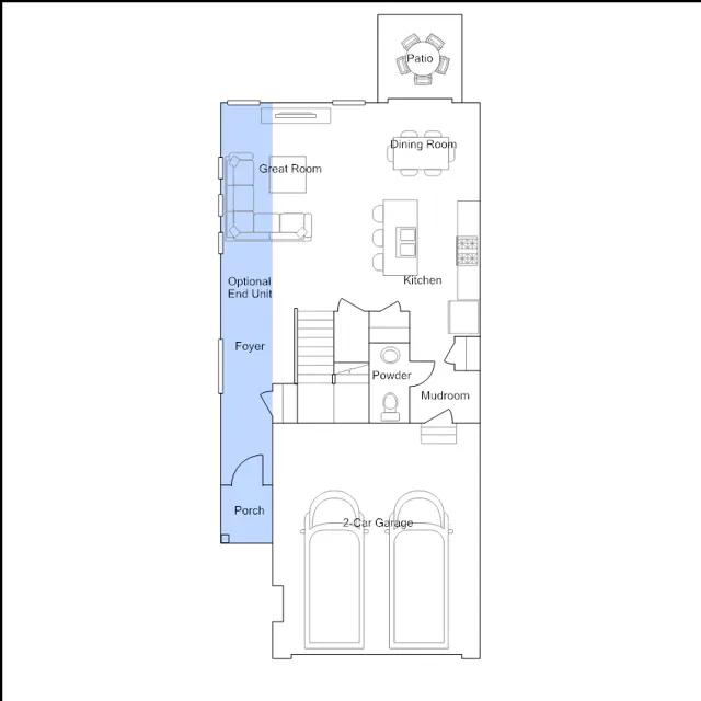
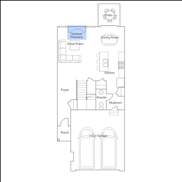
This new two-story townhome design combines comfort and convenience with a double-height foyer to welcome residents and guests into the home. Down the hall is a Great Room for shared moments, a dining room for memorable meals and a modern kitchen for adventurous cooks. Through sliding glass doors is a patio to provide serene outdoor moments. The upper level is occupied by three restful bedrooms, including the spacious owners suite with an attached full-sized bathroom. Completing the home is a two-car garage with convenient mudroom access.
Stay informed with Livabl updates on new community details and available inventory.