









































































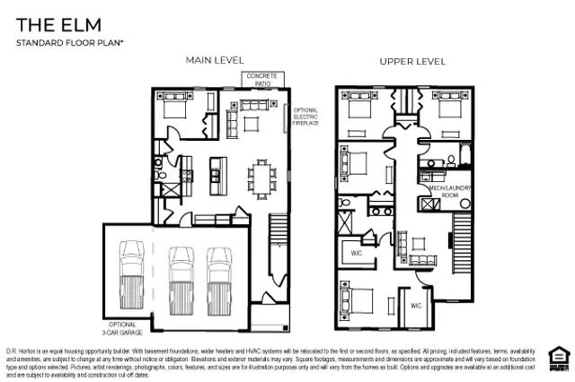
Introducing the Elm, a thoughtfully designed five-bedroom new home with luxury features located at Fields of Waconia in Waconia, Minnesota. Boasting a main level bedroom and bath, this floor plan provides versatility and comfort for residents or guests. The heart of the home is always in the kitchen and this one does not disappoint! Home chefs will enjoy ample storage, a kitchen island with breakfast bar, walk-in pantry, stainless steel appliances, tiled backsplash and quartz countertops. The kitchen is open to the dinette and spacious family room that offers an option for a modern electric fireplace. Four bedrooms are on the upper level with a loft providing additional living space. Retreat to the bedroom suite with two generously sized walk-in closets and private bath. The laundry room is conveniently near the bedrooms making chores a breeze! D....
Stay informed with Livabl updates on new community details and available inventory.