







































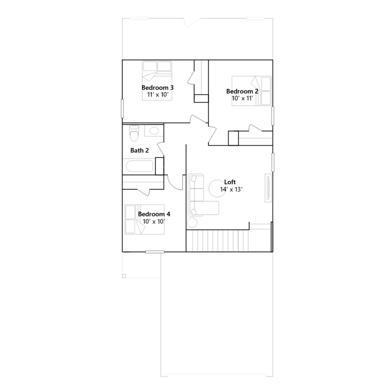
This new two-story home features a comfortable first-level owners suite, complete with a full bathroom and walk-in closet to create a luxurious retreat. A nearby open-concept layout provides simple transitions and multitasking. Three additional bedrooms can be found on the second floor next to a versatile and inviting loft area.
Stay informed with Livabl updates on new community details and available inventory.