




























Get additional information including price lists and floor plans.

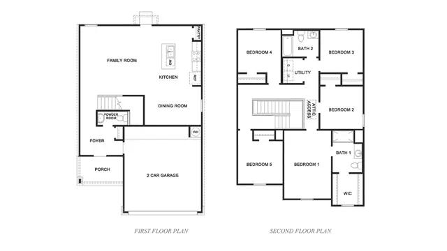
The Franklin plan is one of our two-story homes featured in Preserve at Medina in Von Ormy, TX. This new home layout offers 2 classic front exteriors, 5 bedrooms, 2.5 baths, 2 car-garage and 1891 square feet of comfortable living. Step inside The Franklin to find an elongated foyer opening to an open concept living room, kitchen, and dining area. The gourmet kitchen faces the living area so you don't miss a thing while cooking and includes quartz counter tops, stainless steel appliances and shaker style cabinetry. The main bedroom is located toward the front of the home on the second story and features an attractive attached bathroom with a walk-in shower, quartz countertops, a grand walk-in closet and plenty of storage space. The second story includes all secondary bedrooms, and two full bathrooms. You'll have carpeted floors in every bedroom ...
Stay informed with Livabl updates on new community details and available inventory.