










Get additional information including price lists and floor plans.
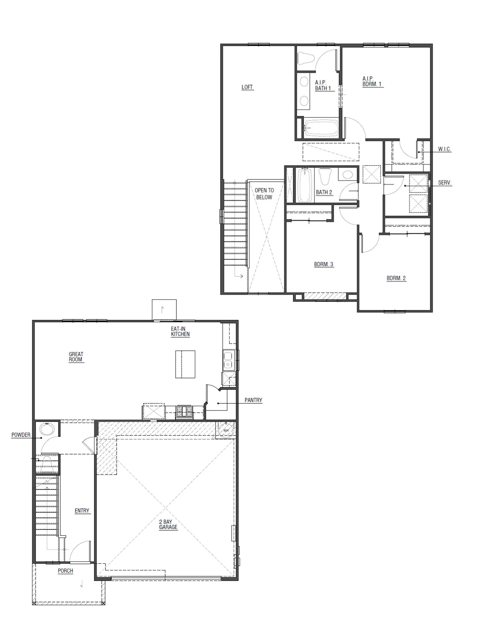
The Ashford is a thoughtfully designed two-story home offering approximately 1,380 square feet of living space with three bedrooms, two full bathrooms, and a convenient powder room. The open-concept great room creates a seamless flow thats ideal for everyday living and entertaining, enhanced by approximately 9-foot ceilings throughout the first floor. The kitchen is both stylish and functional, featuring shaker-style cabinetry, quartz countertops with a full quartz backsplash, a walk-in pantry, and a center island with snack bar and black pendant lighting. Whirlpool stainless-steel appliances include a range, microwave, and dishwasher, all complemented by sleek black finishes throughout the home. Upstairs, the private main suite includes an adjoining bathroom with dual vanity sinks and a large walk-in closet. Two additional bedrooms, a full bathroom, and an upsta...
Stay informed with Livabl updates on new community details and available inventory.