hero-image-0
hero-image-1
hero-image-2
hero-image-3

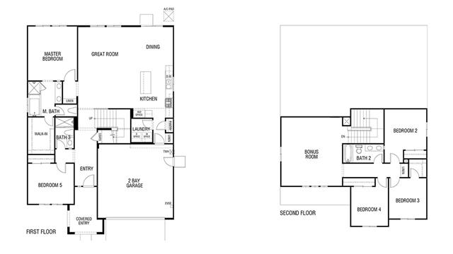
Residence 2537 Plan

Juniper at Silverstone
Sold
Sold
5
3
From 2,537
unit-banner-imageunit-banner-imageunit-banner-image
Residence 2537 Plan details
Residence 2537 Plan is now sold.
Check out available communities below.