













































































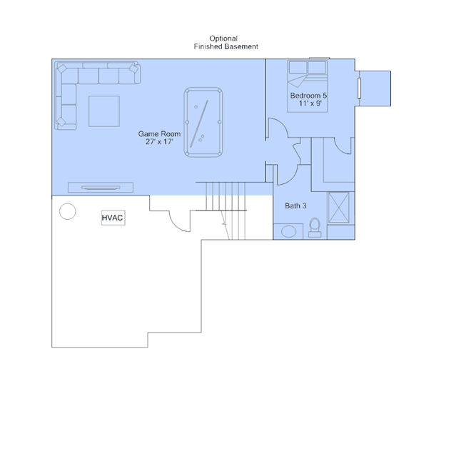
This spacious two-story home features an open-concept layout with the kitchen overlooking the dining room and Great Room. The first-floor flex space offers endless possibilities. On the second floor are the luxe owner's suite and three secondary bedrooms all with walk-in closets while a central loft offers versatility.
Stay informed with Livabl updates on new community details and available inventory.