hero-image-0

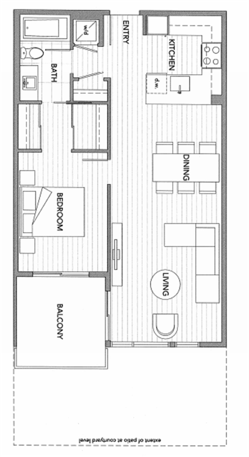
Unit C Plan

By

Anthem

   |   

Union

Union
Sold
Sold
1
1
From 643
unit-banner-imageunit-banner-imageunit-banner-image
Unit C Plan details
Unit C Plan is now sold.
Check out available nearby plans below.