hero-image-0

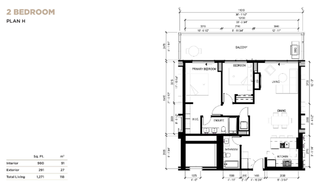
Plan H

One Bear Mountain
For sale
For sale
Pricing coming soon
2
2
From 990
unit-banner-imageunit-banner-imageunit-banner-image
Plan H details

Contact sales center

Get additional information including price lists and floor plans.

Interested? Receive updates

Stay informed with Livabl updates on new community details and available inventory.