hero-image-0
hero-image-1

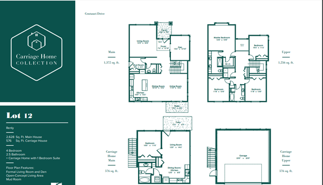
1325 CENTAURI DR

Carriage Home Collection
Sold
Sold
4
3
1
2,115
1325 CENTAURI DR details
1325 CENTAURI DR is now sold.
Check out available nearby homes below.