hero-image-0
hero-image-1

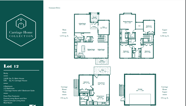
1275 CENTAURI DR

Carriage Home Collection
Sold
Sold
3
3
2,308
1275 CENTAURI DR details
1275 CENTAURI DR is now sold.
Check out available communities below.