






































































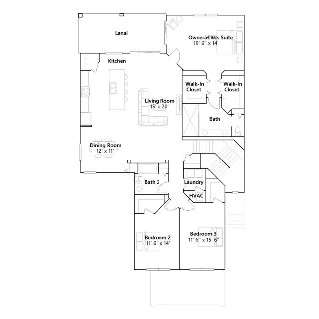
This spacious home includes a lower-level garage while the main floor upstairs features an open design among the kitchen, dining and living room that leads to a spacious lanai. The owners suite features personal lanai access and two walk-in closets, while two secondary bedrooms are situated at the front of the home.
Stay informed with Livabl updates on new community details and available inventory.