Get additional information including price lists and floor plans.
Stay informed with Livabl updates on new community details and available inventory.
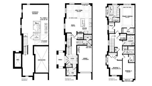
Here are 17 new projects launching sales in the GTA during early 2022
If you’re looking to kick off 2022 with a new construction home, the Greater Toronto Area is expecting plenty of new launches.
FEATURED
Caledon Club
Rural Caledon, Caledon
King's Calling
Rural King, King
Union City - Tower 3
Unionville, Markham
Motto
Bloorcourt Village, Toronto
Springwater
Victoria Square, Markham
The Winston
Willowdale West, Toronto
Brantwood Village
Brier Park, Brantford
ClockWork at Upper Joshua Creek
Westoak Trails, Oakville