hero-image-0

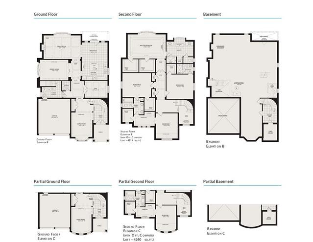
The St Germain Plan

The View in Vaughan - Phase 2
Sold
Sold
4
3
1
From 4,135
unit-banner-imageunit-banner-imageunit-banner-image
The St Germain Plan details
The St Germain Plan is now sold.
Check out available nearby plans below.

Interested? Receive updates

Stay informed with Livabl updates on new community details and available inventory.