hero-image-0

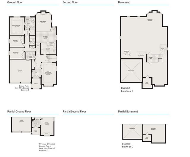
The Paris Plan

The View in Vaughan - Phase 2
Sold
Sold
3
2
From 2,105
unit-banner-imageunit-banner-imageunit-banner-image
The Paris Plan details
The Paris Plan is now sold.
Check out available nearby plans below.

Interested? Receive updates

Stay informed with Livabl updates on new community details and available inventory.