hero-image-0
hero-image-1

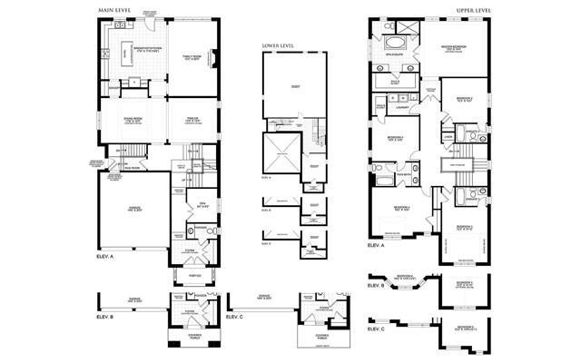
The Munshaw A Plan

Upper West Side
Sold
Sold
5
4
1
From 3,911
unit-banner-imageunit-banner-imageunit-banner-image
The Munshaw A Plan details
The Munshaw A Plan is now sold.
Check out available nearby plans below.