hero-image-0

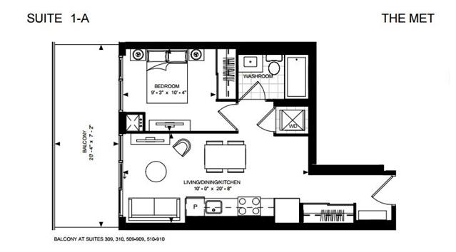
1A Plan

By

Berkley Homes

and

Plaza

   |   

The Met

The Met
Sold
Sold
1
1
From 510
unit-banner-imageunit-banner-imageunit-banner-image
1A Plan details
1A Plan is now sold.
Check out available nearby plans below.